0120-544-201

受付 9:30~18:00(水・日・祝日定休)

地図検索
はこちらから

物件検索:

  • 礼金ゼロ
鶴舞駅徒歩5分・名古屋市中区|6階 1LDK|仮住まい・短期賃貸物件701110

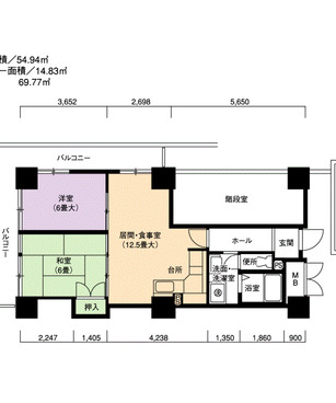
間取り画像

▲クリックすると「全23件」の画像が拡大できます。

所在地 愛知県名古屋市中区千代田5-7-15
交通 JR中央線 鶴舞駅 徒歩5
名古屋市営鶴舞線 鶴舞駅 徒歩5
名古屋市営名城線 矢場町駅 徒歩16
名古屋市営東山線 新栄町駅 徒歩17
月額家賃 108,300円
敷金 2ヶ月 礼金 0ヶ月
更新料 0ヶ月 保証金 -
フリーレント - 共益費 3,600円
仲介料 0ヶ月 総戸数 294 戸
階数 6階 管理開始 38年
間取り 1LDK 床面積 54㎡
駐車場
英語サイト Urbania Chiyoda
建物の制度・特徴・設備
部屋の制度・特徴・設備
  • ドロップインコンロ
  • エアコン
  • バス・トイレ別
  • バルコニー
  • 網戸
  • オートロック
  • モニター付インターホン
  • 温水洗浄便座
  • 浴室乾燥機
  • 追焚機能

仮住まいならお任せください!お問い合わせはこちらから

0120-544-201

受付 9:30~18:00(水・日・祝日定休)

簡単無料!このお部屋をWEBお問い合わせ