-
礼金ゼロ
兵庫駅徒歩5分・神戸市兵庫区|7階 1DK|仮住まい・短期賃貸物件803930
- 礼金ゼロ
▲クリックすると「全17件」の画像が拡大できます。
| 所在地 | 兵庫県神戸市兵庫区駅南通五丁目2番 | ||
|---|---|---|---|
| 交通 |
JR 東海道・山陽本線
『
兵庫駅
』
徒歩5分
神戸高速東西線 『 大開駅 』 徒歩11分 神戸市営海岸線 『 中央市場前駅 』 徒歩19分 |
||
| 月額家賃 | 84,400円 | ||
| 敷金 | 2ヶ月 | 礼金 | 0ヶ月 |
| 更新料 | 0ヶ月 | 保証金 | - |
| フリーレント | - | 共益費 | 4,000円 |
| 仲介料 | 0ヶ月 | 総戸数 | 1200 戸 |
| 階数 | 7階 | 管理開始 | 26年~30年 |
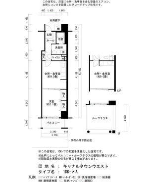
| 間取り | 1DK | 床面積 | 46㎡ |
| 駐車場 | 自走 空き台数:115台 料金:20,020円 | ||
| 英語サイト | Canal Town West | ||
| 建物の制度・特徴・設備 |
|---|
|
|
| 部屋の制度・特徴・設備 |
|
|
0120-544-201
受付 9:30~18:00(水・日・祝日定休)
