-
礼金ゼロ
岩屋駅徒歩7分・神戸市中央区|3階 1LDK|仮住まい・短期賃貸物件804410
- 礼金ゼロ

▲クリックすると「全13件」の画像が拡大できます。
所在地 | 兵庫県神戸市中央区脇浜町一丁目3 | ||
---|---|---|---|
交通 |
阪神本線
『
岩屋駅
』
徒歩7分
JR神戸線 『 灘駅 』 徒歩8分 JR神戸線 『 三ノ宮駅 』 駅までバスで8分 バス停『脇浜三丁目』 徒歩4分 |
||
月額家賃 | 109,300円 | ||
敷金 | 2ヶ月 | 礼金 | 0ヶ月 |
更新料 | 0ヶ月 | 保証金 | - |
フリーレント | - | 共益費 | 4,500円 |
仲介料 | 0ヶ月 | 総戸数 | 177 戸 |
階数 | 3階 | 管理開始 | 26年 |
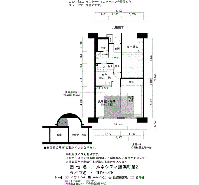
間取り | 1LDK | 床面積 | 54㎡ |
駐車場 | 機械 空き台数:32台 料金:15,070円~16,720円近隣駐車場のご案内・HAT神戸・灘の浜・ルネシティ脇浜町 | ||
英語サイト | Renai City Wakinohamacho Dai2 |
建物の制度・特徴・設備 |
---|
|
部屋の制度・特徴・設備 |
|
0120-544-201
受付 9:30~18:00(水・日・祝日定休)