-
礼金ゼロ
学園都市駅徒歩3分・神戸市西区|3DK|仮住まい・短期賃貸物件803490
- 礼金ゼロ
▲クリックすると「全3件」の画像が拡大できます。
| 所在地 | 兵庫県神戸市西区学園西町七丁目1番地 | ||
|---|---|---|---|
| 交通 |
神戸市営西神・山手線
『
学園都市駅
』
徒歩3分
|
||
| 月額家賃 | ***** | ||
| 敷金 | ***** | 礼金 | ***** |
| 更新料 | ***** | 保証金 | ***** |
| フリーレント | ***** | 共益費 | ***** |
| 仲介料 | ***** | 総戸数 | 856 戸 |
| 階数 | ***** | 管理開始 | 32年~36年 |
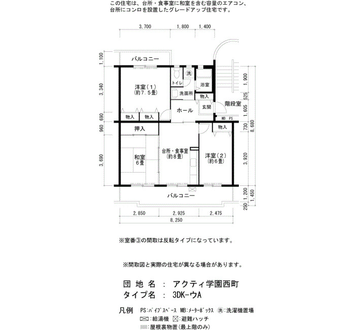
| 間取り | 3DK | 床面積 | 66㎡ |
| 駐車場 | 平面 空き台数:56台 料金:8,470円 | ||
| 英語サイト | Acty Gakuen-nishimachi | ||
| 建物の制度・特徴・設備 |
|---|
|
|
| 部屋の制度・特徴・設備 |
|
|
0120-544-201
受付 9:30~18:00(水・日・祝日定休)
