-
礼金ゼロ
横浜市中区|1階 3LDK|仮住まい・短期賃貸物件402750
- 礼金ゼロ

▲クリックすると「全5件」の画像が拡大できます。
所在地 | 神奈川県横浜市中区本牧和田34-1 | ||
---|---|---|---|
交通 |
JR根岸線
『
根岸駅
』
駅までバスで7分
バス停『東福院前』
徒歩1分
JR根岸線 『 桜木町駅 』 駅までバスで26分 バス停『東福院前』 徒歩1分 横浜市営ブルーライン 『 桜木町駅 』 駅までバスで26分 バス停『東福院前』 徒歩1分 |
||
月額家賃 | 131,000円 | ||
敷金 | 2ヶ月 | 礼金 | 0ヶ月 |
更新料 | 0ヶ月 | 保証金 | - |
フリーレント | - | 共益費 | 3,000円 |
仲介料 | 0ヶ月 | 総戸数 | 94 戸 |
階数 | 1階 | 管理開始 | 34年 |
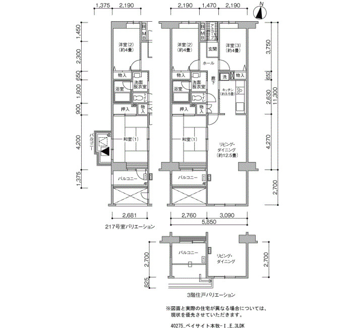
間取り | 3LDK | 床面積 | 71㎡ |
駐車場 | 機械 空き台数:6台 料金:18,150円~20,130円近隣駐車場のご案内・プロムナード本牧 | ||
英語サイト | Baysite Honmoku- |
建物の制度・特徴・設備 |
---|
|
部屋の制度・特徴・設備 |
|
0120-544-201
受付 9:30~18:00(水・日・祝日定休)