-
礼金ゼロ
海浜幕張駅徒歩18分・千葉市美浜区|3階 3LDK|仮住まい・短期賃貸物件305600
- 礼金ゼロ
▲クリックすると「全6件」の画像が拡大できます。
| 所在地 | 千葉県千葉市美浜区打瀬2-22 ミラリオ | ||
|---|---|---|---|
| 交通 |
JR京葉線
『
海浜幕張駅
』
徒歩18分
JR京葉線 『 検見川浜駅 』 徒歩22分 京成千葉線 『 検見川駅 』 徒歩35分 |
||
| 月額家賃 | 142,400円 | ||
| 敷金 | 2ヶ月 | 礼金 | 0ヶ月 |
| 更新料 | 0ヶ月 | 保証金 | - |
| フリーレント | - | 共益費 | 7,500円 |
| 仲介料 | 0ヶ月 | 総戸数 | 445 戸 |
| 階数 | 3階 | 管理開始 | 27年~29年 |
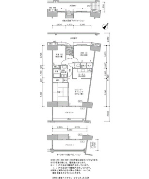
| 間取り | 3LDK | 床面積 | 83㎡ |
| 駐車場 | 機械 空き台数:18台 料金:10,230円~17,380円近隣駐車場のご案内・幕張ベイタウンミラマール | ||
| 英語サイト | Makuhari Bay Town Mirario | ||
| 建物の制度・特徴・設備 |
|---|
|
|
| 部屋の制度・特徴・設備 |
|
|
0120-544-201
受付 9:30~18:00(水・日・祝日定休)
