-
礼金ゼロ
せんげん台駅徒歩9分・越谷市|2階 3LDK|仮住まい・短期賃貸物件502070
- 礼金ゼロ
▲クリックすると「全3件」の画像が拡大できます。
| 所在地 | 埼玉県越谷市千間台西3-4 | ||
|---|---|---|---|
| 交通 |
東武伊勢崎線
『
せんげん台駅
』
徒歩9分
東武伊勢崎線 『 大袋駅 』 徒歩24分 東武伊勢崎線 『 武里駅 』 徒歩25分 |
||
| 月額家賃 | 95,500円 | ||
| 敷金 | 2ヶ月 | 礼金 | 0ヶ月 |
| 更新料 | 0ヶ月 | 保証金 | - |
| フリーレント | - | 共益費 | 2,810円 |
| 仲介料 | 0ヶ月 | 総戸数 | 345 戸 |
| 階数 | 2階 | 管理開始 | 41年~42年 |
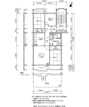
| 間取り | 3LDK | 床面積 | 84㎡ |
| 駐車場 | 平面 空き台数:12台 料金:7,480円(軽専用 空き台数:1台 料金:5,610円)近隣駐車場のご案内・せんげん台パークタウン三番街 | ||
| 英語サイト | Sengendai Park Town 4Bangai | ||
| 建物の制度・特徴・設備 |
|---|
|
|
| 部屋の制度・特徴・設備 |
|
|
0120-544-201
受付 9:30~18:00(水・日・祝日定休)
