-
礼金ゼロ
星ヶ丘駅徒歩13分・名古屋市名東区|7階 1LDK|仮住まい・短期賃貸物件701590
- 礼金ゼロ
▲クリックすると「全23件」の画像が拡大できます。
| 所在地 | 愛知県名古屋市名東区植園町2-1 | ||
|---|---|---|---|
| 交通 |
名古屋市営東山線
『
星ヶ丘駅
』
徒歩13分
名古屋市営東山線 『 星ヶ丘駅 』 駅までバスで5分 バス停『西山小学校』 徒歩4分 名古屋市営東山線 『 一社駅 』 徒歩21分 |
||
| 月額家賃 | 83,900円 | ||
| 敷金 | 2ヶ月 | 礼金 | 0ヶ月 |
| 更新料 | 0ヶ月 | 保証金 | - |
| フリーレント | - | 共益費 | 4,700円 |
| 仲介料 | 0ヶ月 | 総戸数 | 518 戸 |
| 階数 | 7階 | 管理開始 | 20年~26年 |
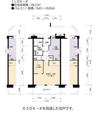
| 間取り | 1LDK | 床面積 | 48㎡ |
| 駐車場 | 自走 空き台数:53台 料金:10,340円 | ||
| 英語サイト | Urban Rafre Nijigaoka Minami | ||
| 建物の制度・特徴・設備 |
|---|
|
|
| 部屋の制度・特徴・設備 |
|
|
0120-544-201
受付 9:30~18:00(水・日・祝日定休)
