-
礼金ゼロ
桶川駅徒歩5分・桶川市|3LDK|仮住まい・短期賃貸物件502160
- 礼金ゼロ
▲クリックすると「全3件」の画像が拡大できます。
| 所在地 | 埼玉県桶川市若宮1-8 | ||
|---|---|---|---|
| 交通 |
JR高崎線
『
桶川駅
』
徒歩5分
JR高崎線 『 北上尾駅 』 徒歩28分 JR高崎線 『 北本駅 』 徒歩60分 |
||
| 月額家賃 | ***** | ||
| 敷金 | ***** | 礼金 | ***** |
| 更新料 | ***** | 保証金 | ***** |
| フリーレント | ***** | 共益費 | ***** |
| 仲介料 | ***** | 総戸数 | 356 戸 |
| 階数 | ***** | 管理開始 | 39年~40年 |
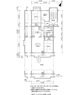
| 間取り | 3LDK | 床面積 | 79㎡ |
| 駐車場 | 平面 空き台数:21台 料金:9,460円近隣駐車場のご案内・ビュータワーおけがわ | ||
| 英語サイト | Park Town Wakamiya | ||
| 建物の制度・特徴・設備 |
|---|
|
|
| 部屋の制度・特徴・設備 |
|
|
0120-544-201
受付 9:30~18:00(水・日・祝日定休)
