-
礼金ゼロ
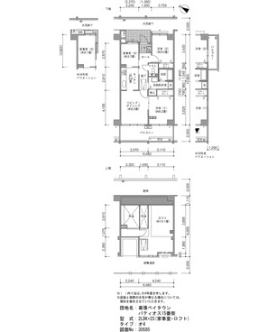
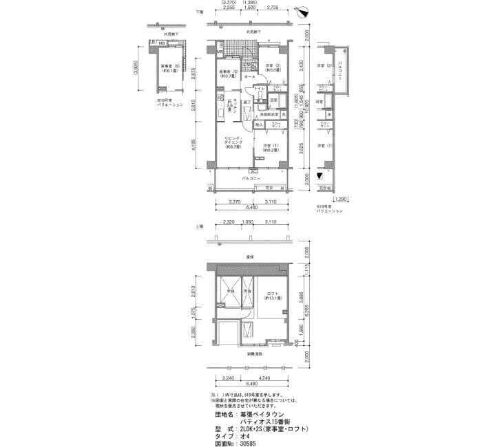
海浜幕張駅徒歩13分・千葉市美浜区|6階 2LDK|仮住まい・短期賃貸物件305850
- 礼金ゼロ
▲クリックすると「全6件」の画像が拡大できます。
| 所在地 | 千葉県千葉市美浜区打瀬2-10 パティオス15番街 | ||
|---|---|---|---|
| 交通 |
JR京葉線
『
海浜幕張駅
』
徒歩13分
JR京葉線 『 海浜幕張駅 』 駅までバスで6分 バス停『パティオス6・15番街』 徒歩1分 |
||
| 月額家賃 | 160,500円 | ||
| 敷金 | 2ヶ月 | 礼金 | 0ヶ月 |
| 更新料 | 0ヶ月 | 保証金 | - |
| フリーレント | - | 共益費 | 7,780円 |
| 仲介料 | 0ヶ月 | 総戸数 | 126 戸 |
| 階数 | 6階 | 管理開始 | 26年 |
| 間取り | 2LDK | 床面積 | 91㎡ |
| 駐車場 | 機械 空き台数:1台 料金:12,100円近隣駐車場のご案内・幕張ベイタウンミラマール | ||
| 英語サイト | Makuhari Bay Town Patios 15Bangai | ||
| 建物の制度・特徴・設備 |
|---|
|
|
| 部屋の制度・特徴・設備 |
|
|
0120-544-201
受付 9:30~18:00(水・日・祝日定休)
