-
礼金ゼロ
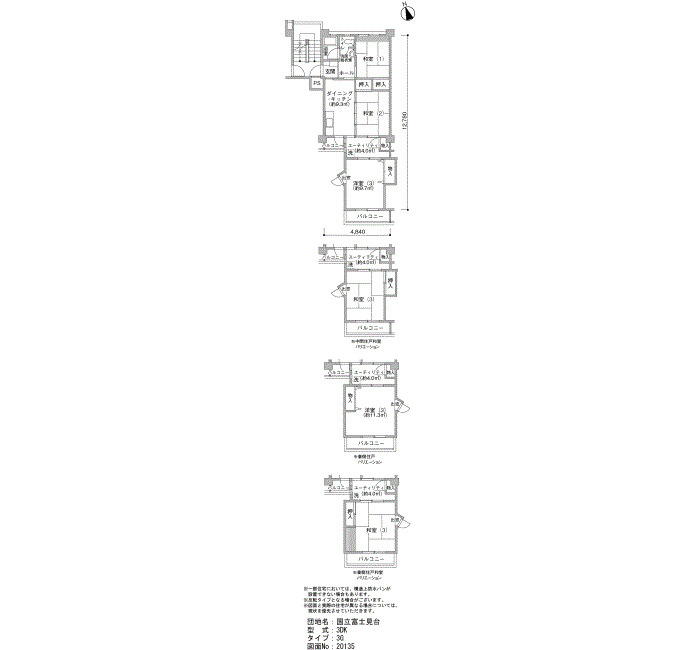
谷保駅徒歩5分・国立市|2階 3DK|仮住まい・短期賃貸物件201350
- 礼金ゼロ
▲クリックすると「全6件」の画像が拡大できます。
| 所在地 | 東京都国立市富士見台1-7 | ||
|---|---|---|---|
| 交通 |
JR南武線
『
谷保駅
』
徒歩5分
JR南武線 『 谷保駅 』 徒歩10分 JR中央線 『 国立駅 』 徒歩23分 JR中央線 『 国立駅 』 駅までバスで8分 バス停『富士見第一団地』 徒歩2分 JR南武線 『 矢川駅 』 駅までバスで5分 バス停『富士見第一団地』 徒歩1分 |
||
| 月額家賃 | 93,900円 | ||
| 敷金 | 2ヶ月 | 礼金 | 0ヶ月 |
| 更新料 | 0ヶ月 | 保証金 | - |
| フリーレント | - | 共益費 | 2,800円 |
| 仲介料 | 0ヶ月 | 総戸数 | 1959 戸 |
| 階数 | 2階 | 管理開始 | 59年 |
| 間取り | 3DK | 床面積 | 55㎡ |
| 駐車場 | 機械 空き台数:7台 料金:11,440円~12,650円 | ||
| 英語サイト | Kunitachi Fujimidai | ||
| 建物の制度・特徴・設備 |
|---|
|
|
| 部屋の制度・特徴・設備 |
|
|
0120-544-201
受付 9:30~18:00(水・日・祝日定休)
