-
礼金ゼロ
春日井市|3階 2DK|仮住まい・短期賃貸物件700570
- 礼金ゼロ
▲クリックすると「全5件」の画像が拡大できます。
| 所在地 | 愛知県春日井市高森台10-2-3 他 | ||
|---|---|---|---|
| 交通 |
JR中央線
『
高蔵寺駅
』
駅までバスで8分
バス停『高森台 / 石尾台』
徒歩2分
|
||
| 月額家賃 | 38,200円 | ||
| 敷金 | 2ヶ月 | 礼金 | 0ヶ月 |
| 更新料 | 0ヶ月 | 保証金 | - |
| フリーレント | - | 共益費 | 4,200円 |
| 仲介料 | 0ヶ月 | 総戸数 | 741 戸 |
| 階数 | 3階 | 管理開始 | 49年~52年 |
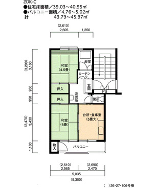
| 間取り | 2DK | 床面積 | 39㎡ |
| 駐車場 | 平面 空き台数:242台 料金:4,840円~6,380円近隣駐車場のご案内・岩成台・高座台・中央台・藤山台 | ||
| 英語サイト | Takamori-dai | ||
| 建物の制度・特徴・設備 |
|---|
|
|
| 部屋の制度・特徴・設備 |
|
|
0120-544-201
受付 9:30~18:00(水・日・祝日定休)
