0120-544-201

受付 9:30~18:00(水・日・祝日定休)

地図検索
はこちらから

物件検索:

  • 礼金ゼロ
龍ケ崎市駅徒歩6分・龍ケ崎市|3階 4LDK|仮住まい・短期賃貸物件306190

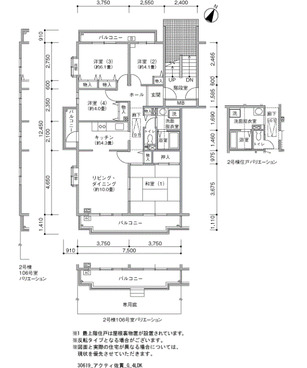
間取り画像

▲クリックすると「全7件」の画像が拡大できます。

所在地 茨城県龍ケ崎市佐貫町740
交通 JR常磐線 龍ケ崎市駅 徒歩6
JR常磐線 藤代駅 徒歩33
関東鉄道竜ケ崎線 入地駅 徒歩28
月額家賃 99,000円
敷金 2ヶ月 礼金 0ヶ月
更新料 0ヶ月 保証金 -
フリーレント - 共益費 4,000円
仲介料 0ヶ月 総戸数 207 戸
階数 3階 管理開始 27年~30年
間取り 4LDK 床面積 87㎡
駐車場 平面 空き台数:4台 料金:6,490円
英語サイト Acty Sanuki
建物の制度・特徴・設備
部屋の制度・特徴・設備
  • 置き型コンロ
  • 自動お湯張り機能
  • 網戸
  • エアコン
  • モニター付インターホン
  • 浴室乾燥機
  • バス・トイレ別
  • バルコニー
  • 追焚機能

仮住まいならお任せください!お問い合わせはこちらから

0120-544-201

受付 9:30~18:00(水・日・祝日定休)

簡単無料!このお部屋をWEBお問い合わせ