-
礼金ゼロ
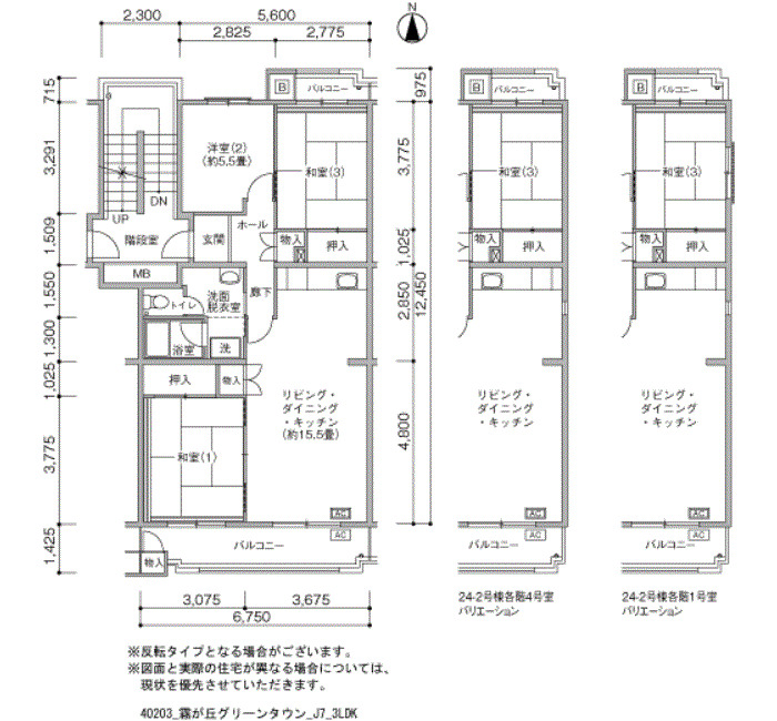
横浜市緑区|5階 3LDK|仮住まい・短期賃貸物件402030
- 礼金ゼロ

▲クリックすると「全5件」の画像が拡大できます。
所在地 | 神奈川県横浜市緑区霧が丘3-22-5 | ||
---|---|---|---|
交通 |
JR横浜線
『
十日市場駅
』
駅までバスで7分
バス停『郵便局前』
徒歩2分
東急田園都市線 『 青葉台駅 』 駅までバスで19分 バス停『郵便局前』 徒歩2分 JR横浜線 『 長津田駅 』 駅までバスで11分 バス停『郵便局前』 徒歩6分 東急田園都市線 『 長津田駅 』 駅までバスで11分 バス停『郵便局前』 徒歩6分 |
||
月額家賃 | 102,700円 | ||
敷金 | 2ヶ月 | 礼金 | 0ヶ月 |
更新料 | 0ヶ月 | 保証金 | - |
フリーレント | - | 共益費 | 4,200円 |
仲介料 | 0ヶ月 | 総戸数 | 848 戸 |
階数 | 5階 | 管理開始 | 38年~44年 |
間取り | 3LDK | 床面積 | 84㎡ |
駐車場 | 平面 空き台数:70台 料金:12,210円自走 空き台数:56台 料金:12,210円~13,750円 | ||
英語サイト | Kirigaoka Green Town |
建物の制度・特徴・設備 |
---|
|
部屋の制度・特徴・設備 |
|
0120-544-201
受付 9:30~18:00(水・日・祝日定休)